В доме, где я живу, есть небольшой спортивный магазинчик. И на его примере очень хорошо можно увидеть, как Фэн Шуй может повлиять на развитие бизнеса.
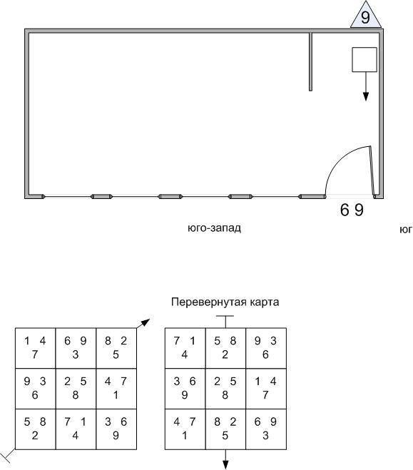
Магазинчик был открыт в 8 периоде (фасад дома юго-запад 2), и поначалу представлял из себя небольшое помещение с дверью на юге. Летящие звезды юга поддерживались активным перекрестком. Касса располагалась на востоке и смотрела на юго-запад.
Я наблюдала за ним с 2004 года. В 2004-2008 годах дела шли неплохо, единственное, на что как-то раз пожаловалась хозяйка, текучка персонала. Никто из молодых продавцов не держался за свое место, к лету все увольнялись и приходилось искать новых.

Как видно, при таком расположении входной двери, на ней была комбинация 6-9, к которой в 2004 и 2005 году приходили годичные 8 и 9. В 2006 и 2007 годах касса получала годичные 1 и 9.
В 2008 году хозяйка магазинчика решила расширить его площадь. Лучше было этого не делать.

Помещение, которое присоединили справа, было без окон. Комбинация 6-9 хотя и не самая замечательная, но хотя бы со своевременной девяткой, ушла с двери, там появилась комбинация 8-2 с несвоевременной двойкой. Касса также оказалась в горной звезде 5, на северо-востоке помещения.
С 2008 года магазинчик с трудом выживал, даже внутри неуловимо все изменилось. Ассортимент становился все беднее, на косметический ремонт не было денег, даже лампочки, казалось, стали более тусклыми. Заходить туда уже не тянуло.
В 2011 магазинчик едва не закрылся. Часть площадей была продана соседнему магазину, а также была перенесена входная дверь. Теперь она находится с торца дома и выходит на юго-восток 1. Карта звезд поменялась, и те, кто немного знает систему Летящих звезд, может построить новую карту и сделать прогноз – долго ли еще протянет этот бизнес.
Конечно, в бизнесе очень важен менеджмент и маркетинг; выучка и доброжелательность персонала, ассортимент магазина и оформление витрин играют свою роль. Но практически всегда те проблемы, которые видны в карте звезд, отражаются, как в зеркале, в работе магазина или офиса. И грамотно обустроить помещение с точки зрения Фэн Шуй – означает решить часть этих проблем, сделать бизнес более гармоничным и прибыльным.
P.S. В нашей школе Mingli мы проводим обучение Фэн Шуй для новичков с «0» в двух форматах – Онлайн-курс и Очный Интенсив 4 дня в Санкт-Петербурге.
Также для новичков в Фэн Шуй мы ежегодно выпускаем «Инструкцию Фэн Шуй», где можно найти, что вам обещают звезды и какие корректоры и активизаторы можно поставить для улучшения ситуации. Рекомендации появляются в Инструкции каждый месяц. Можно купить печатную версию.
И еще у нас есть БЕСПЛАТНОЕ приложение📱«Гид по Фэн Шуй». Эта уникальная программа, разработанная Mingli, которая помогает быстро и просто получить разметку квартиры или дома по Фэн Шуй. Теперь вы всегда сможете узнать, в каких местах можно, а в каких нельзя, начинать ремонт и делать активизации, перечисленные в наших «Справочнике Фэн Шуй» и «Инструкции Фэн Шуй», в которых собрана вся информация о Фэн Шуй года.




