Обещала написать статью про кровать, но нужно сделать «лирическое отступление». Недавно у одной из уважаемых коллег увидела интересную ветку рассуждений по поводу дистанционных фэн шуй консультаций. Мол, просит консультант прислать по имэйл градус, план – и дальше все рассказывает. Не является ли это недостойной подменой настоящей консультации?
Тема важная, поэтому давайте разбираться!
Сразу скажу – да, полноценную консультацию по фэн шуй можно сделать только находясь на месте. Но значит ли это, что все варианты «дистанционок» - это обман и надувательство и делать их нельзя категорически?
Когда возможна дистанционная консультация?
Бывает так, что человек живет в городе, где хорошего консультанта «днем с огнём», а денег вызвать специалиста из другого города у него просто нет. Что же, вообще забыть про фэн шуй и жить как получится? Чем-то помочь такому клиенту мы можем и дистанционно, вопрос – чем и в каком объеме.
Иногда решения нужно принимать супер-быстро! Тогда ци мэнь или другие прогностические техники нам в помощь + кое-что можно посмотреть по плану и другим параметрам.
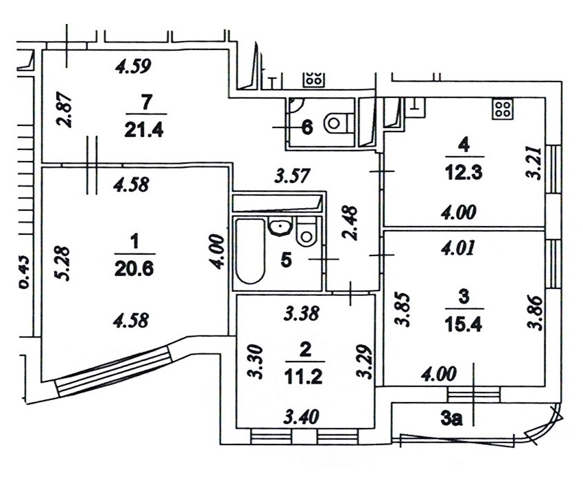
Конфигурация квартиры
Какие-то недочеты квартиры можно заметить уже на уровне плана:
- Квартира странной формы, с острыми углами, запутанная
- Квартира неправильной формы, большие сектора отсутствуют
- Туалет в центре квартиры
- Центр квартиры вне ее плана
- Входная дверь напротив санузла
Даже не делая измерения, такие варианты уже можно отмести, если вы ищете себе жилье.

Конфигурация квартиры + направления сторон света
Да, даже «прикинутые» по карте Google.
- Туалет или кухня на северо-западе
- Кухня на западе или севере
Какие бы звезды не «летали» в помещениях, такое расположение – существенный минус для жильцов. И об этом тоже можно сказать человеку, просто видя план, чтобы он не совершил ошибку, купив такую квартиру.
Конфигурация + стороны света + карта бацзы человека
Если мы еще немножко шагнем вперед и посмотрим на карту бацзы клиента, то сможем увидеть больше и обнаружить следующие недочеты:
- Полезные для человека элементы попали в отсутствующие сектора или в санузлы
- Входная дверь в неполезном элементе или сталкивается с годом рождения
- Ша в направлении земной ветви года рождения
- и еще много нюансов
Тут уж картой Google не всегда можно обойтись. Но если клиент мотивирован – я не вижу ничего страшного в том, чтобы он сам замерил универсальную ци у двери подъезда. На этот случай есть подробные инструкции, но полученные таким образом замеры надо всегда проверять, а поэтому просить не только план квартиры, но и ссылку на карту, план дома и квартиры в нем.
Фотографии и видео
Тоже очень помогают в принятии решения. На фото, а лучше, даже на видео вы сможете увидеть то, что не видели на плане: низкие или скошенные потолки, глухие углы, слишком узкие коридоры, балки. Это дополнит картину.

Как вы видите, все перечисленные выше моменты относились, скорее, к выбору квартиры, нежели к полноценной консультации. Но что-то сказать, мы, безусловно, смогли.
Будет ли это полноценной фэн шуй консультацией? Нет. Помощью? Да.
Дальнейший анализ обычно строится на точных измерениях, особенно они важны для тех, кто делает замеры для Летящих звезд непосредственно по двери. Возможно ли сделать хотя бы частичную консультацию дистанционно, используя бацзы-фэн шуй и летящие звезд? Очень сложно, но можно.
Точные замеры
Если вы все же беретесь помочь клиенту с планировкой дистанционно – на вас ложится большая ответственность. По сути, он становится вашими глазами и руками, делать все замеры придется ему (и не телефоном конечно, а спортивным или военным компасом хорошего качества), а также потребуются не только план и фото дома, квартиры, но и фото/видео местности, причем наиподробнейшие. Одного замера и плана тут явно будет мало! Вам необходимо будет понять, как устроено жилье, проверить все замеры и это потребует гораздо больше сил и времени, чем очная консультация. Иногда и проверка карты звезд бывает нужна.
Зато сколько гордости и радости испытываешь, когда только после перестановки кровати в правильно выбранные даты, ребенок – поправляется, молодая женщина становится матерью, а дела у отца семейства начинают идти в гору.
Сразу уточняю – это ни в коем случае не реклама дистанционных консультаций! Советы по фэн шуй на расстоянии – скорее крайняя ситуация, когда других вариантов просто нет! И об этом надо обязательно предупреждать клиента.
Полноценная консультация
Как бы ваш клиент ни научился измерять, есть вещи, которые действительно может сделать только консультант и только на месте. Это ювелирные «подкрутки» кроватей или столов в нужный градус, использование формул 120 и 72 драконов, большинство водных формул, установка двери и так далее – все, что требует очень точных измерений и знаний, как их делать.
Также верно, что опытный консультант на месте действительно чувствует и понимает пространство и делает правильные выводы. В каком-то смысле очная консультация гораздо проще дистанционной – ты все видишь, «ловишь» знаки, которые тебе посылает Вселенная и твой любимый Лопань – твой верный помощник.
Но что делать в тех ситуациях, когда помощь нужна, а средств пригласить консультанта – нет? Сказать, что «фэн шуй – только для богатых» и оставить человека с его проблемами и переживаниями? Или помочь хоть чем-то? Думаю, каждый решает это для себя.




Доброе утро.Подскажите,пожалуйста,я по Гуа 8 Западная группа ,а тыл дома и вход в квартиру Восток это для меня - Дворец привлекательности Лю-Ша «Шесть убийц» .Такое расположение двери сильно может влиять или все же натальные звезды оказывают большее влияние на входную дверь ? А по году рождения Я Водяной Кролик))