Нежно любимые всеми Летящие звезды – за кажущуюся простоту поначалу и эффективность применения в умелых руках на самом деле не всегда применимы. Это абсолютно нормально: у любой системы, даже очень хорошей, есть ограничения.
![]()
Для построения карты звезд надо знать время постройки дома (въезда жильцов) и направление фасада. Поэтому, если вам не известен возраст дома или же у дома несколько фасадов, или запутанные схемы ци – применить Летящие звезды Сань Юань сложновато. Что же делать в таких случаях?
Я уже довольно давно и успешно пользуюсь системой Бацзы-Фэн Шуй, которая не зависит от времени постройки или фасада. Зато отлично учитывает особенности карты Бацзы человека. Ее можно применять самостоятельно, можно использовать вместе с другими системами, получая стабильный результат.
24 горы компаса Лопань делят пространство на 24 горы – сектора по 15% каждый. 24 горы – это небесные стволы и земные ветви. Но ведь и карта Бацзы человека состоит из небесных стволов и земных ветвей. Столпы человека (карта Бацзы) и пространства синхронизируются, перекликаются между собой.
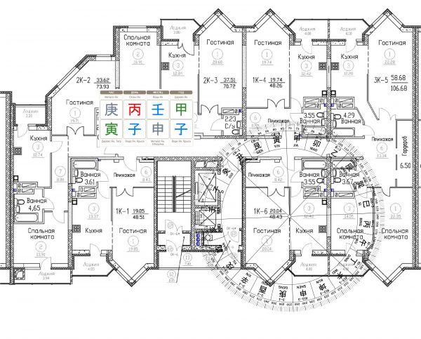
Например, вы знаете, что земная ветвь года рождения учитывается при Выборе дат. По Бацзы именно столп года рождения первым встречает все приходящие энергии: и плохие, и хорошие. Но приходило ли вам в голову проверить, что происходит в этом направлении в пространстве (относительно вашей квартиры)? Если в направлении земной ветви года находится лифт или другое ша – человек может чаще болеть, жаловаться на повышенную утомляемость, быть раздражительным. На картинке ниже можно увидеть пример: лифты находятся в направлении земной ветки года рождения.
![]()
Таких интересных вещей в Бацзы-Фэн Шуй множество: вы можете активизировать в пространстве любого из 10 богов, определить причины проблем в доме, найти ресурсное место для сна и работы. Часто именно в этой системе находятся решения для бизнеса: начиная с планировки офиса до активизаций.
Данную систему мы проходим на Фэн Шуй Интенсиве 2 и онлайн-курсе «Фэн Шуй: пространство, работающее на вас».


