В прошлых статьях мы затронули тему дизайн-проекта для того, чтобы иметь общее представление о составе и объёме работ. Сейчас мы рассмотрим, на какие моменты стоит обратить внимание начинающему консультанту или если вы хотите сделать Фэн Шуй самостоятельно. В основном все корректировки по Фэн Шуй касаются нескольких основных пунктов: плита, кровать, рабочий стол, двери, санузел, активации. Если заранее подробно не уточнить и не прописать, что и как разместить, вы можете несколько удивиться, придя в квартиру и увидев кровать, жестко прикрепленную к полу или раскладной стол. Это совершенно понятно и логично для тех, кто уже давно занимается консультациями, но лучше всё прописать. Чтобы заказчик или дизайнер не могли трактовать рекомендации двояко, либо додумывать самостоятельно отдельные моменты в связи с нехваткой информации. Описал по пунктам, что нужно уточнить у заказчика при работе над Фэн Шуй либо по некоторым моментам принять решение самостоятельно.

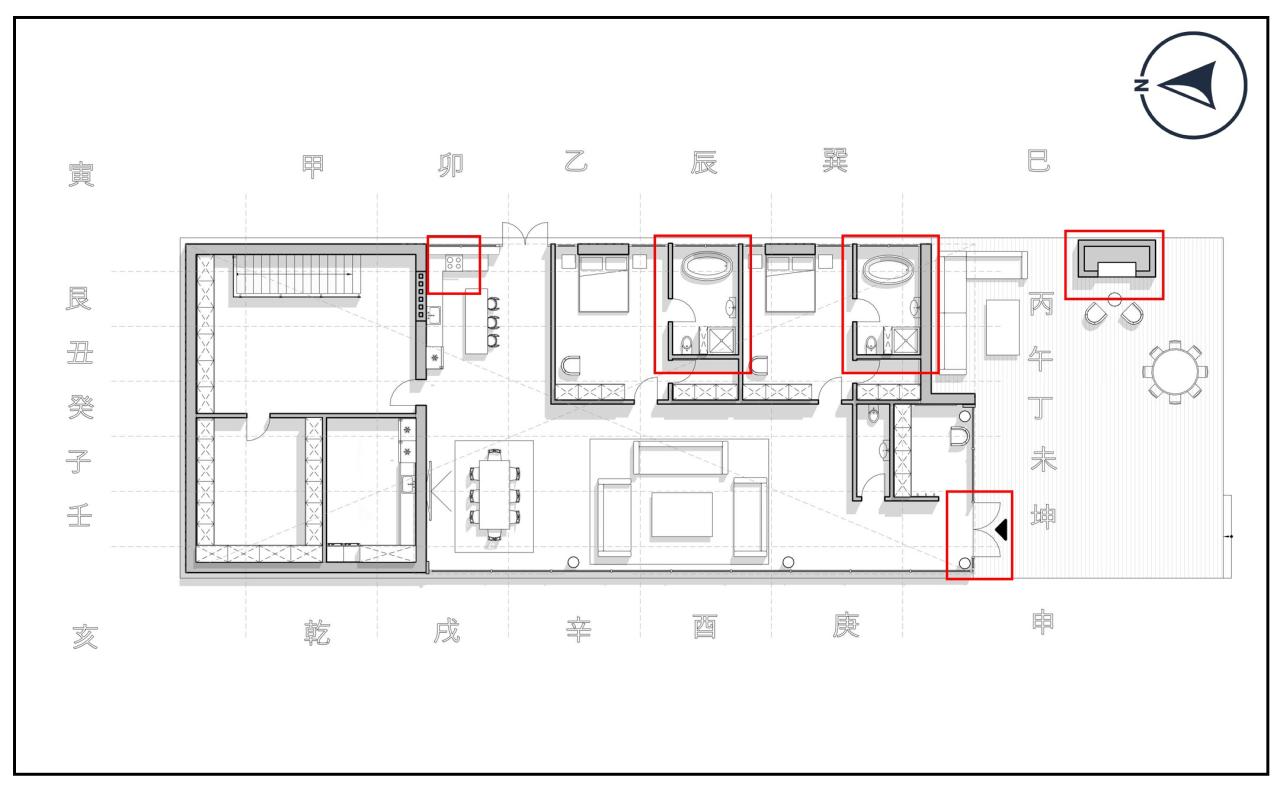
Плита и другие приборы
Периодически случается, что плиту рекомендуют перенести, но при этом не учитывая места подключения, если газовая, и типа вытяжки, который тоже нужно разместить и как-то подключить. Бывает, плиту невозможно поставить в любом месте на кухне. Возможно, лучше подобрать «среднее» местоположение по Летящим Звездам, но это будет реализуемый вариант, чем предлагать идеальное место, но в котором априори будет нереалистично разместить.
Что нужно знать:
- Варочная панель отдельно или обычная плита
- Тип плиты – газовая, индукционная, электрическая, комбинированная
- Размер – ширина от 50 до 70 см
- Вытяжка – рециркуляционная, проточная или комбинированная
- Определить место подключение самой плиты и вытяжки


Кровать
Самый животрепещущий вопрос практически всегда касается кроватей и другой габаритной мебели. Из-за того, что часто планировки рассматриваются не в масштабе и сама мебель подбирается абстрактно, возникают некоторые интересные ситуации. Например, когда, придя в квартиру, начинаешь понимать, что комната оказалась не такая большая, как это казалось на плане, мебель чуть больше и вот уже ничего не убирается, как планировали. А уже всё согласовано и решено.
Также важна привязка (размер конкретный от стены до края кровати), чтобы у заказчика или дизайнера был точный размер, от которого возможно отталкиваться и не было бы таких ситуаций, когда вы рекомендуете отодвинуть кровать от стены, а подвинуть можно всего на пару сантиметров. Между кроватью и стеной образуется небольшая щель, по факту все правы – её отодвинули, но для Летящих Звёзд, сами знаете, как её нужно расположить, и такой вариант не годится.
Также для Фэн Шуй важно указать материал каркаса кровати, чтобы он не был металлическим и был без каких-то подъемных механизмов для выставления корректных формул и активизаций.
- Тип и размер кровати – односпальная (до 100 см. ширина), полуторная (от 100 до 160 см), двуспальная (от 160 см)
- Форма – прямоугольная
- Материал каркаса – массив дерева, мдф или ДСП
- Изголовье или головная спинка кровати – прямое, жесткое, 50–60 см над головой, от пола — 90–110 см


Рабочий стол
Выбирая рабочий стол, учтите размеры помещения. Столы бывают: пластиковые, деревянные, железные, раскладные, поворотные, прямоугольные, круглые, овальные, консольные, модульные и т.д. Для того, чтобы клиент не мучился вопросами сам и не задавал их консультанту, лучше следует указать следующие основные пункты:
- По виду опор – с четырьмя точками опоры для того, чтобы его возможно было подвинуть, это не может быть консольный или жестко прикрепленный к стене стол
- Конструкция – прямоугольная, единая. Желательно массивная и тяжелая
- Материал – натуральный камень, массив дерева, мдф, ДСП
- Размер – длина 120 - 160см, ширина 60-70 см

Двери
Основные замеры происходят не по входной двери в квартиру, и поэтому про них будет больше в статье про строительство дома. Для дверей межкомнатных в квартире есть один пункт, который следует выделить красным, если предполагается работа с Сань Хэ. Это открывание двери – внутрь/наружу, правая/левая. В зависимости от «потока» (см. раздел про Сань Хэ) лучше делать открывание двери в определённую сторону. Это сложно объяснить с точки зрения комфорта или дизайна и просто пишется как указание.

Санузел
Если размещения сантехнических приборов в санузле ещё нет, то возможно сразу скорректировать расположение и направление унитаза, душа, стиральной машинки. Здесь нужно учитывать:
- Тип унитаза – напольный или подвесной. Если он будет под каким-то углом, то подвесной, скорее всего?/ сделать не получится, нужно клиента предупредить об этом
- Уточнить расположение основного стояка и привязываться к нему при расположении сантехники, если расположить всё рандомно, есть вероятность, что потом это будет невозможно сделать
- Расположение стиральной/сушильной машины учесть. Для того, чтобы они не активизировали нежелательный сектор
- Учесть расположение слива душа, если он будет вровень с полом. Для «выхода воды»

Активизации
Если вместе с общим альбомом Фэн Шуй рассчитываются сразу длительные активизации, наподобие треугольника элементов, следует указать в выбранном месте, что здесь не просто необходимо поставить лампочку зеленую, но и к этой лампочке нужно какое-то место подключения. Вроде бы это логично и понятно, но лучше это пунктиком написать. Если клиент затеял серьезную перепланировку, чтобы он заранее был осведомлен о том, что в конкретном месте нужен выход провода или розетка и ему не приходилось думать уже по факту как и от куда теперь это всё подключать.

В этот раз мы рассмотрели небольшую часть тех вопросов, которые необязательно разбирать при консультации Фэн Шуй. Если это не указать, никто и не заметит, что это должно было быть. Но для удобства дальнейшей работы и исполнения отметить будет не лишним.
Дмитрий Баров



Добрый день!
Скажите пожалуйста а на картинке где про двери пишите, человек стоит лицом к двери это он внутри дома или снаружи дома?
Спасибо.