Планирование пространства – это важный этап в процессе строительства или ремонта помещения. От того, насколько грамотно выполнена планировка, зависит не только внешний вид интерьера, но и его функциональность, удобство и безопасность. Когда мы дополнительно соединяем эти знания с Фэн Шуй, получается не просто правильно организовать пространство, а сделать его гармоничным, основанном на принципах взаимодействия энергий, влияющих на нашу жизнь.
В этой статье мы рассмотрим основные аспекты разработки планировки.
Вот несколько шагов, которые помогут вам начать планирование квартиры/дома с учётом Фэн Шуй:
1. Определите свои цели и задачи
Прежде, чем приступить к разработке планировки, необходимо определить цели и задачи. Это может быть создание уютной спальни, просторной гостиной, функциональной кухни или любого другого помещения. Важно также учитывать потребности всех членов семьи и особенности их образа жизни. Например, если в семье есть дети, то необходимо предусмотреть места для игр и учёбы. Если кто-то из членов семьи работает из дома, то нужно выделить отдельное рабочее место.
2. Оцените текущую ситуацию
Осмотрите своё пространство и отметьте, какие элементы в нём присутствуют и как они расположены. Обратите внимание на размеры и форму помещений, расположение окон и дверей, наличие несущих стен и других ограничений. Также необходимо учесть расположение инженерных коммуникаций, таких как водопровод, канализация, отопление и электричество.

3. Изучите существующие ограничения
Перед тем как начать планировать, ознакомьтесь с существующими ограничениями. Это могут быть строительные нормы и правила, требования пожарной безопасности, расположение коммуникаций и т. д. Учитывайте эти ограничения при разработке плана.

4. Проанализируйте «энергетические потоки»
Проанализируйте квартиру по Фэн Шуй с учётом тех знаний и инструментов, которыми вы владеете. Не забывайте, что планировка по Фэн Шуй – это не просто расстановка мебели и оформление интерьера, а глубокое понимание энергетических процессов и умение работать с ними. Если вы чувствуете, что не сможете разобраться в этой теме самостоятельно, лучше обратиться за помощью к профессионалу.

5. Разработайте концепцию планировки
На основе анализа исходных данных и целей проекта можно приступать к разработке концепции планировки. Она должна включать в себя зонирование помещения, определение мест для хранения вещей, а также выбор материалов и цветов для отделки. Зонирование позволяет разделить пространство на функциональные зоны, такие как кухня, гостиная, спальня и т. д. Места для хранения могут быть представлены в виде шкафов, полок, стеллажей и других систем хранения. Материалы и цвета должны соответствовать общему стилю интерьера и создавать гармоничную атмосферу.

6. Создайте эскизы
После разработки концепции можно приступить к созданию эскизов. Эскизы представляют собой схематичное изображение будущей планировки с указанием размеров и расположения всех элементов. Они помогают визуализировать проект и внести необходимые корректировки.

7. Создайте детальный план
После того как вы определились с основными параметрами планировки, создайте детальный план. Он должен включать в себя размеры всех комнат, расположение окон, дверей, мебели и других предметов интерьера. Это позволит вам точно рассчитать необходимое количество материалов и избежать ошибок при ремонте.

8. Внесите коррективы
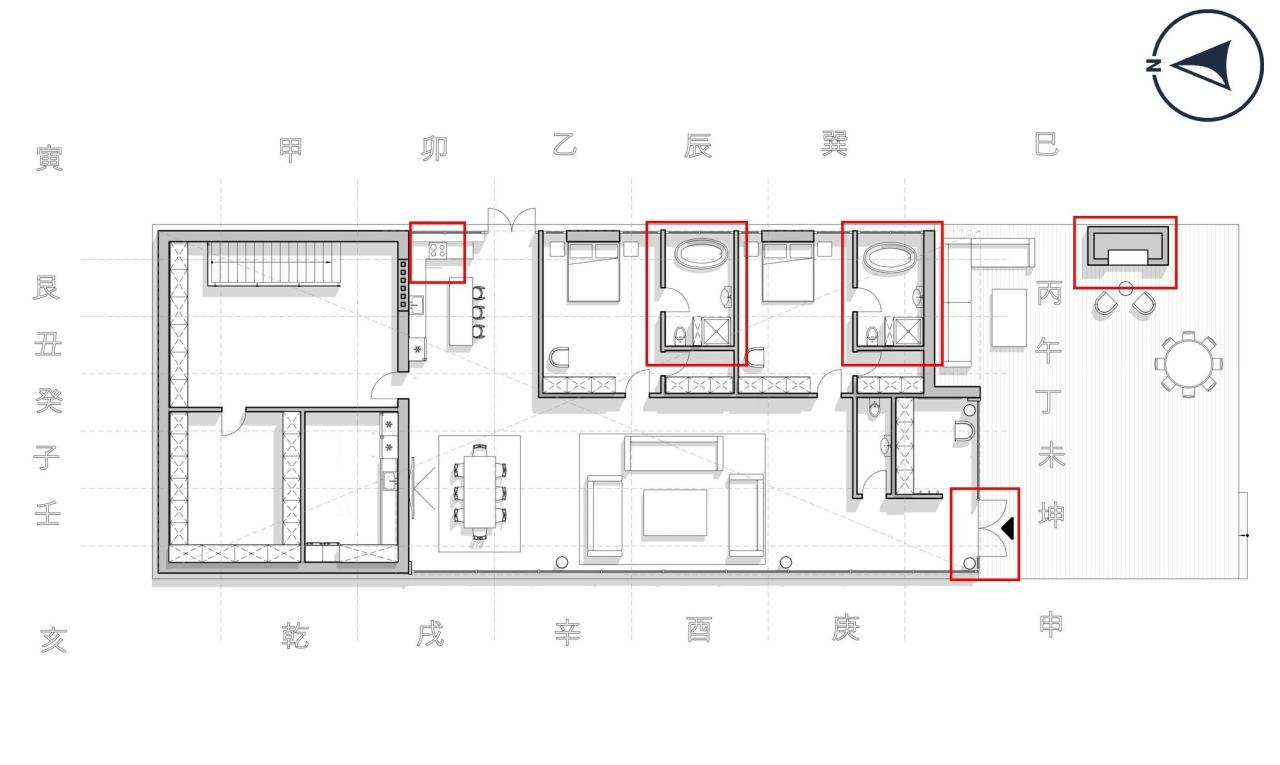
Возможно, после более тщательного анализа вы обнаружите недостатки или возможности для улучшения. Используйте принципы Фэн Шуй, чтобы изменить расположение мебели, цветов, освещения и других предметов. Используя специальные таблицы или калькуляторы для расчёта, определите, какие звёзды/горы находятся в каждой зоне, а также какие сектора и направления заняты мебелью или другими предметами. Учтите все элементы интерьера, даже небольшие объекты, особенно связанные с водой или огнём. Это поможет вам понять, насколько сильно каждый сектор влияет на энергию пространства.
Проанализируйте результаты: какие звёзды доминируют в вашем доме? Какие энергии преобладают? На основе этой информации вы сможете определить, как лучше изменить планировку и оформление помещения для достижения гармонии и улучшения качества жизни.


9. Выберите стиль
Определитесь со стилем, чтобы планировка соответствовала общему виду. Это также поможет вам определиться с материалами для отделки и мебелью.

10. Согласуйте план с соответствующими органами
Если ваша планировка требует внесения изменений в конструкцию здания, необходимо согласовать её с соответствующими органами. Это может занять некоторое время, но позволит избежать проблем в будущем.

11. Не забывайте о своих ощущениях
Важно, чтобы пространство было не только гармоничным, но и комфортным для вас. Если какой-то элемент вызывает у вас дискомфорт, лучше его убрать или изменить.
Следуйте принципам Фэн Шуй, но не забывайте о своих собственных предпочтениях. Помните, что Фэн Шуй – это не просто набор правил, а философия, которая требует глубокого понимания и практики. Начните с небольших изменений и постепенно переходите к более серьёзным. Главное – создать гармоничное и уютное пространство, которое будет радовать вас каждый день

12. Будьте терпеливы
Результаты Фэн Шуй могут проявиться не сразу. Дайте пространству время на то, чтобы адаптироваться к новым изменениям.

Следуя этим рекомендациям, вы сможете создать удобную и функциональную планировку, которая будет отвечать вашим требованиям и бюджету. Важно помнить, что разработка планировки – это творческий процесс, и результат будет зависеть от ваших предпочтений и образа жизни. Поэтому не бойтесь экспериментировать и вносить изменения в первоначальный план.
Пожалуйста, будьте осторожны и проконсультируйтесь со специалистом, если решите применить предложенные советы.
Дмитрий Баров



Добрый день, спасибо Дмитрий что делитесь своим опытам. Это очень интересно. И лично мне как начинающиму дизайнеру и консультанту фен шуй, такие статьи очень облегчают работу.
Когда все этапы описаны, есть определенный концепт не только в планировки а во всем проекте, то могут получится шедевры.
Спасибо!