«Противозачаточные квартиры» звучит довольно жестко, но такую же жесткую борьбу за рождение малыша ведут пары, которые сталкиваются со сложностями в планировании беременности. Как мы часто повторяем, фэншуй – это треть влияния на нашу жизнь, и для деторождения, проходя медицинские консультации и лечение, проанализировав карту рождения будущих родителей, имеет смысл изучить потенциал жилья, определить, насколько жилье поддерживает эту сферу жизни.

Вот карты мужчины и женщины, которые активно занялись здоровьем, чтобы приблизить желанную беременность. Как видно, обе карты требуют балансировки и на уровне медицины и на уровне образа жизни, пара тщательно следует рекомендациям, а так же применяет метафизические техники для повышения возможности зачатия.
Из соображений приватности не размещаем фото района, однако для интересующихся сделаем пометку, что Императорский фэншуй расположения дома дает минус балл для фертильности. Однако, не у всех же проживающих в доме есть вопросы с зачатием, смотрим конкретную квартиру.

Смотрим «крупным ситом», уже на этом уровне можно предположить ослабленное здоровье у проживающих, особенно у мужчины (подтверждается). Но не так все и плохо, корректируем, что возможно, и переходим к следующему этапу анализа.

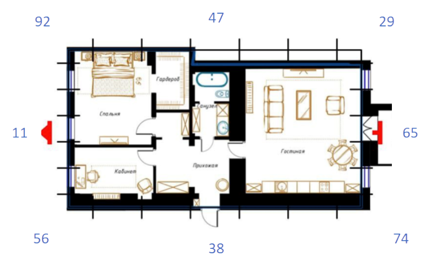
А вот здесь мы уже изучаем пристально. Помните, вначале мы упомянули про баланс бацзы? Квартира его не дает, люди не получают такую нужную стихию воды, причем важна она здесь для обоих супругов. Но ведь можно переделать гостиную под спальню? Даже в этом случае спальное место будет выглядеть весьма экзотично, но допустим люди готовы на любые переделки и перестановки ради важной им сейчас цели. Берем «мелкое сито», систему Сань Юань.


Вопрос про перспективы переноса спальни на место гостиной отпадает сам собой, а изначальное место спальни ослабляет энергию обоих супругов, жизненной силы у людей меньше. Проживающему в квартире мужчине следует серьезно заниматься вопросами здоровья. Расположение рабочих мест позволяет хорошо зарабатывать, иметь
профессиональную репутацию, но расходы на медицину в таком жилье будут постоянны.
Множество конфигураций указывает на сложности с зачатием, невозможность иметь детей, риски для вынашивания и проблемы у уже родившихся маленьких деток. В комплекс неблагоприятных моментов входят проблемы с печенью и гормональным фоном (подтверждается). Как временное решение можно переложить пару на более приличное место сна в гостиную, переставить плиту, которая удваивает те проблемы, о которых нам говорит входная дверь. А входная дверь говорит о том, что люди хорошо зарабатывают собственным трудом, обладают проницательностью, следуют тенденциям времени, но также она говорит о большой опасности для детей, отсутствии потомства и рисках выкидышей.
Когда мы анализируем помещение, мы не смотрим все подряд – в этой квартире можно найти хорошие моменты. Своим анализом мы пытаемся ответить на вопрос, каковы перспективы зачатия и деторождения для проживающих в этом помещении и можно ли улучшить ситуацию. В данной квартире реализация этого проекта достаточно затруднительна, слишком большое количество конфигураций, негативно влияющих на здоровье. Кроме того, повторяются указания неблагоприятные именно для репродукции и благополучного вынашивания. В этом конкретном случае оптимален переезд. Чем дольше люди получают ограничивающие воздействия энергий пространства, тем дольше затягивается получение желанного результата. Для приведенных карт бацзы есть перспективные месяцы для зачатия уже в 2024 году, потому вопрос пространственных изменений особенно актуален.
Анна Золотарева







Дом 1 периода? Ого!