Давайте поговорим о быстрой проверке, когда вам нужно понять, стоит ли рассматривать квартиру как вариант покупки или же нет. Возьмем конкретный пример – новостройка, дом еще в работе, дверей нет.
И будем говорить о том, что мы можем увидеть на местности и предположить, потому что, конечно, если вы владеете Ци Мэнь Дунь Цзя, то просто глянете расклад и поймете, стоит ли вам идти на просмотр 😊.
Сразу оговорю, что в основном расскажу о простых способах оценить внешнее и внутреннее пространство, потому что оценка по водным формулам, течению ци по сань хэ или бацзы-фэншуй доступна лишь профессионалу, который изучал эти темы. Но и без них кое-что увидеть можно!
Кстати, чтобы не возвращаться уже к неметафизическим вопросам, обязательно составьте себе списочки:
-
Что вам обязательно нужно, без чего обойтись точно не сможете, например, вы мечтаете о ванной комнате с окном или хотите, чтобы дом был рядом с метро.
-
Список, от чего вы можете отказаться или чем пренебречь. Например, пожелание о продуктовом магазине в шаговой доступности может померкнуть по сравнению с шикарным видом из окна.
Эти списочки позволят вам сразу отмести часть вариантов, потому как Фэн Шуй «фэншуём» 😉, но бытовые нужды и мечты никто не отменял. Составлять их лучше не только рационально, но и немножко помедитировав на тему «Как я хотел бы жить». Но это уже совершенно другой разговор.
Поехали!
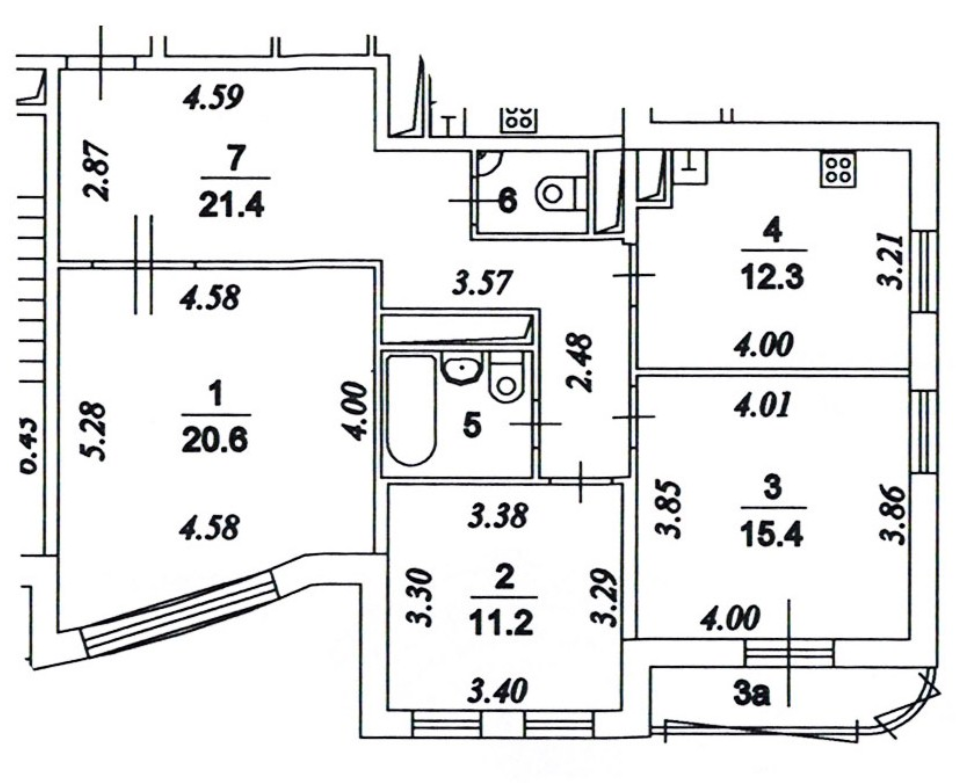
Сначала гляньте на план квартиры. И исключите из рассмотрения все варианты с туалетом или кухней в центре, квартиры очень странной конфигурации или с полностью отсутствующими секторами.
Вот такие даже и смотреть не нужно:
Иногда квартиры с отсутствующими секторами пригодны для жизни :), но решение принимать надо, очень внимательно посмотрев Бацзы и карту звезд.)
Внешнее окружение
Лучше всего приехать на место и походить вокруг. Не говоря уж о первом впечатлении о месте – нравится/не нравится – вам нужно оценить:
-
Ландшафт
Лучше всего распечатать карту и отметить все, что вы видите интересного: повышения и понижения местности (особенно серьезные), ЛЭП, недострои, открытые или активные пространства, реки или водоемы. Это нам будет нужно для того, чтобы сравнить внешнее окружение с картой Летящих звезд.
Распечатывайте карту сразу с направлениями сторон света, это вы можете сделать на нашем сервисе Шаблон 24 горы.
Что еще смотрят профессионалы
Обязательно изучают воду, если она есть поблизости: не только как активизатор комбинаций звезд, то есть тех энергий, которые сложатся в доме, но и с точки зрения Водных формул.
Смотрят на понижение/повышение местности и водный рот, чтобы оценить потоки ци вокруг дома, а также то, насколько правильно сам дом вписывается в ландшафт, условно говоря его «пропускную способность» – может ли он правильно получать и аккумулировать ту энергию, которая течет через него. Оценку потоков ци изучает Сань Хэ. Также можно посмотреть на планировку этажа, чтобы понять, насколько конкретное помещение сможет получить и использовать энергию, уже попавшую в дом.
- Внешний вид дома
Ваша задача – понять, где у дома фасад. Без этого затруднительно будет прикинуть Летящие звезды. Дома с непонятным фасадом, с двумя или тремя фасадами сразу можно отнести к проблемным с точки зрения Фэн Шуй. Проблема заключается в том, что отсутствие явного фасада не даст сформироваться четкой энергетической картине, а, значит, хороший результат сложно будет получить. Могут ли люди жить в таких домах? Могут. Но мы то с вами хотим хорошую квартиру по Фэн Шуй выбрать!
А вот и наш пример:
Дом строится сейчас в районе, где большинство построек относится к 1980-90 годам.

Питер достаточно плоский и вокруг дома серьезных повышений/понижений ландшафта нет. Реки или водоема – тоже. Мы видим активный перекрёсток на юго-западе от дома, открытое пространство на юге. С севера, востока и юго-востока дома стоят достаточно близко.
С фасадом у дома проблемка. Логично было бы предположить, что фасад будет на главную или же на второстепенную дорогу. Ан нет, менеджер по продажам не сразу смогла сказать, куда смотрит дом, потом сообщила, что на север (где к нему вплотную примыкает другое строение). Входов будет два – с север и с юга. Но с юга, где главная дорога, запланирована детская площадка и этот вход считается второстепенным.
Пока дом не готов, оценить сказанное можно только по смоделенным картинкам:



Я бы «проголосовала» за юг, но четкой энергетической картины в доме не сложится.
Внутреннее пространство
- План этажа
Первое впечатление: очень кривых квартир нет, туалетов в центре – тоже. Хорошо! Можно «пройтись» по квартирам и посмотреть, нет ли где туалета на северо-западе, кухни на северо-западе или западе. Сразу отметать такие квартиры не стоит, но пометочку сделать не лишнее: потом надо будет решить, можно ли скорректировать такой дефект.
Кстати, на юго-западе от дома (тут вам придется поверить мне на слово) находится водный рот – обычно это место слияния рек или, в нашем случае, место впадения Невы в Финский залив. Один из параметров Сань Хэ, который можно посмотреть, расположение лифтовой шахты относительно квартиры. Желательно, чтобы лифт был в направлении понижения местности, водного рта. Как видите, здесь для большинства квартир лифт находится со стороны повышения ландшафта, что не очень хорошо влияет на возможности жильцов.
Давайте разбираться дальше.
- Летящие звезды, выводы по карте
По-хорошему, верную карту Летящих звезд можно получить только тогда, когда дом уже готов, двери поставлены и, более того, прошло некоторое время после сдачи дома. (На моем опыте от 3 месяцев до года). Почему? Потому что в большинстве случаев работает ци, полученная при измерении входной двери (когда вы прислоняете компас непосредственно к дверному полотну).
Что же делать, если дом еще не построен? Опытные метафизики могут обратиться к предсказательным системам, как я уже писала выше. Но можно и прикинуть, какая карта звезд получится у дома, если дверь встанет хорошо и не будет давать искажения. Ведь в идеальном варианте на двери должны быть те же измерения, что и рядом с ней.
Если можно измерить направления, стоя с компасом рядом с домом – сделайте это. Если нет – используйте Шаблон 24 горы (напоминаю, мы сейчас не делаем полноценную консультацию, а занимаемся предварительными исследованиями).
Еще раз посмотрим на Шаблон 24 горы:
Если мы примем южный фасад, как точку отсчета, то у нас может получиться карта юг 3, 8 периода. Давайте, для примера, посмотрим на нее:
Мы видим 88 на фасаде и это неплохо до 9 периода (2024 года). На юге и эго-западе, как вы помните, есть активность, соответственно будут активизироваться комбинации 16 и 88, с хорошими водными звездами. Водные (лицевые звезды) отвечают за деньги и «любят» простор и движение, понижение местности. Горная 8, конечно, находится в не столь хорошем положении, поэтому потенциально с отношениями и здоровьем в таком доме будет похуже, чем с деньгами. (Потенциально потому, что у каждой семьи будет своя квартира, расстановка мебели, вход, удача в Бацзы и так далее).
После 2024 года, когда период сменится, ведущая партия достанется девятке и теперь уже она будет отвечать за счастливую жизнь. Со стороны водной 9, к сожалению, находятся дома и тихие зеленые дворы. А если смотреть немножко дальше – то и повышение местности. Единственный вариант – покупать квартиру повыше, чтобы соседние здания не «блокировали процветание». Но повышение ландшафта все равно останется, поэтому давать деньги 9 в полную силу не сможет. Горная 9 более-менее остается в сохранности.
- Квартиры
То, что мы точно не сможем изменить в многоквартирном доме – это входная дверь. Поэтому пристально посмотрим на комбинацию на двери, ведь от нее, во многом, зависит благополучие жильцов. Мы берем в расчет именно комбинацию целиком, но, в первую очередь, обращаем внимание на водную звезду в комбинации. Сейчас, в 8 периоде, благоприятны 8, 1, 9 (не во всех комбо) и допустима 6 (тоже многое зависит от того, с кем она стоит).

Что ж… Только в одной двушке на двери допустимая комбо 16. Все остальные квартиры не могут похвастаться прекрасной энергией на входе. 52 на двери четырехкомнатной вообще никуда не годится, 34 – несвоевременна, в паре 97 водная звезда – семерка, а значит, именно она будет активна, в паре 79 – водная звезда своевременна, денежная составляющая активна, но 9 в комбинации с 7 дает, помимо денег, еще и проблемы.
Хорошая новость: комбинация на двери не всегда определяет удачу квартиру. Очень важно, какие комбинации активизированы внешним окружением. В этом плане квартира с комбо 16 на двери выглядит симпатично – помните, на юго-западе есть большой активный перекресток.
Посмотрите еще, какую комбинацию активизирует лифт относительно квартиры:

Для квартиры лифт может рассматриваться, как внешняя активность. Если он находится со стороны плохих комбинаций (25, 52, комбо с водной 2, 5 или 7, в первую очередь), его влияние на квартиру оценивается, как негативное. Ставим минус. Квартирке-двушке в северо-восточном секторе дома снова повезло: лифт активизирует 61.
Ну и еще одна немаловажная вещь, про которую многие забывают: надо проверить, есть ли в доме хорошие места для кроватей, плиты и, по желанию, рабочих столов.

Для кровати учитываются: место, направление изножья, направление, с которого приходит ци с двери в спальню относительно кровати. Нам опять нужны благоприятные, своевременные звезды: 8, 1, 9, возможна 6, но также важны и их комбинации. Если не извращаться и не ставить кровати под углом, то для направления изножья у нас всего 2 варианта: юг и запад. А хорошие места для кроватей находятся на западных, юго-западных и южных звездах. На северо-западе, северо-востоке и юго-востоке кровать, плиту или рабочий стол ставить точно не стоит. Как вариант, можно поставить кровать на юге, изножьем на север, но у такой позиции есть и определенные минусы.
Давайте посмотрим двушку, у которой были неплохие показатели.

На двери одной из комнат, относительно кровати, активна допустимая шестерка, на двери другой – двойка, что нам не очень нравится, поскольку 2 – несвоевременная звезда и в этом периоде может приносить болезни. Осталось придумать, как решить вопрос с кухней на северо-западе – и можно заселяться 😉 Шучу.
На самом деле я специально выбрала для примера не очень хороший вариант. Если вы видите такой и время еще есть – лучше поискать еще.
Что еще смотрят профессионалы
Конечно, система Летящих звезд сложнее, чем я вам здесь ее показала, обязательно стоит учесть нюансы, которые могут повлиять на оценку квартиры, учесть числа гуа людей.
Также надо посмотреть, какая ци попадает в квартиру с точки зрения 24 гор и как она влияет на Бацзы всех жильцов, особенно главы семьи и основного добытчика (система бацзы-фэн шуй). Ведь у каждого человека есть полезные и не полезные элементы и стоит проверить, поддерживает ли помещение конкретного человека.
На первый взгляд может показаться, что сделать выбор сложно, выбирать не из чего. Но я привела вам в пример достаточно неудачный дом (с высокой стоимостью квартир, кстати). Конечно, идеальных помещений нет, как и идеальных людей; но вы всегда можете найти жилье с парой-тройкой существенных плюсов и, сыграв на них, улучшить свою жизнь.
Удачи в поиске!
Научиться самому оценивать пространство можно на нашем очном курсе «Фэн шуй Интенсив» или на онлайн курсе Фэн Шуй.
Присоединяйтесь!





Добрый день) в каких случаях, кроме неопределенного фасада, не будут работать летящие звезды?